Cho thuê nhà xưởng KCN BECAMEX CHƠN THÀNH, BP 38.837m 34362589 | Rongbay.com
Đang tải dữ liệu ...
Về trang chủ
Đang tải dữ liệu...

Cho thuê nhà xưởng KCN BECAMEX CHƠN THÀNH, BP 38.837m

Thời gian: 08/11/2025-Lượt xem: 0-Mã tin: 34362589

Tăng lượt xem cho tin này * Lượt xem sẽ tăng ít nhất gấp 10 lần sau khi sử dụng

Tổng quan :

  • Giá : Thoả thuận
  • Diện tích : 38.837m2

Địa chỉ: , , Bình Phước- Xem bản đồ

Liên hệ chủ nhà

0931769444

Chat hỏi chủ nhà

Lưu tin

Thông tin thêm

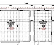
CHO THUÊ NHÀ XƯỞNG – KCN BECAMEX CHƠN THÀNH, BÌNH PHƯỚC – 38.837m²


Thông tin chi tiết
Vị trí: Khu Công Nghiệp Becamex – Chơn Thành, Tỉnh Bình Phước
Tổng diện tích khuôn viên: 63.904m²
Tổng diện tích xây dựng: 38.837m²
Cho thuê theo 2 phương án linh hoạt


Phương án 1
Khuôn viên: 63.904m²
Diện tích xây dựng: 38.837m² gồm
Xưởng 1: 9.900m²
Xưởng 2: 9.900m²
Xưởng 3: 4.500m²
Xưởng 4: 4.500m²
Xưởng 5: 4.500m²
Xưởng 6: 4.500m²
Nhà văn phòng 1 (2 tầng): 451m²
Nhà văn phòng 2 (2 tầng): 451m²
Còn lại là các công trình phụ trợ khác


Phương án 2
Khuôn viên: 31.952m²
Diện tích xây dựng: 19.418m² gồm
Xưởng 1: 9.900m²
Xưởng 2: 4.500m²
Xưởng 3: 4.500m²
Nhà văn phòng 2 (2 tầng): 451m²
Còn lại là các công trình phụ trợ khác


Tiện ích & đặc điểm
Hệ thống PCCC đạt chuẩn KCN
Kết cấu nhà xưởng kiên cố, khung thép tiền chế, nền bê tông chịu tải trọng lớn
Điện 3 pha công suất cao, hệ thống cấp thoát nước đầy đủ
Đường nội bộ rộng, xe container ra vào thuận tiện
Phù hợp sản xuất, kho bãi, logistics hoặc gia công xuất khẩu


Vị trí thuận lợi
Nằm trong KCN Becamex – Chơn Thành, khu công nghiệp trọng điểm phía Bắc Bình Dương, kết nối trực tiếp với Quốc lộ 13 và cao tốc TP Hồ Chí Minh – Chơn Thành – Đắk Nông


Giá cho thuê
Nhà xưởng: 3.5 USD/m²/tháng
Văn phòng: 5.0 USD/m²/tháng


Liên hệ
CÔNG TY TNHH MTV QUÝ LỘC VƯỢNG
Hotline: 0931 769 444
Website: https://nhaxuongchinhchu.vn

Vị trí và tiện ích xung quanh