Cho thuê nhà xưởng KCN Mộc Bài, Bến Cầu, Tây Ninh 22.989m 34329185 | Rongbay.com
Đang tải dữ liệu ...
Về trang chủ
Đang tải dữ liệu...

Cho thuê nhà xưởng KCN Mộc Bài, Bến Cầu, Tây Ninh 22.989m

Thời gian: 06/10/2025-Lượt xem: 0-Mã tin: 34329185

Tăng lượt xem cho tin này * Lượt xem sẽ tăng ít nhất gấp 10 lần sau khi sử dụng

Tổng quan :

  • Giá : Thoả thuận
  • Diện tích : 22.929m2

Địa chỉ: , , Tây Ninh - Xem bản đồ

Liên hệ chủ nhà

0931769444

Chat hỏi chủ nhà

Lưu tin

Thông tin thêm

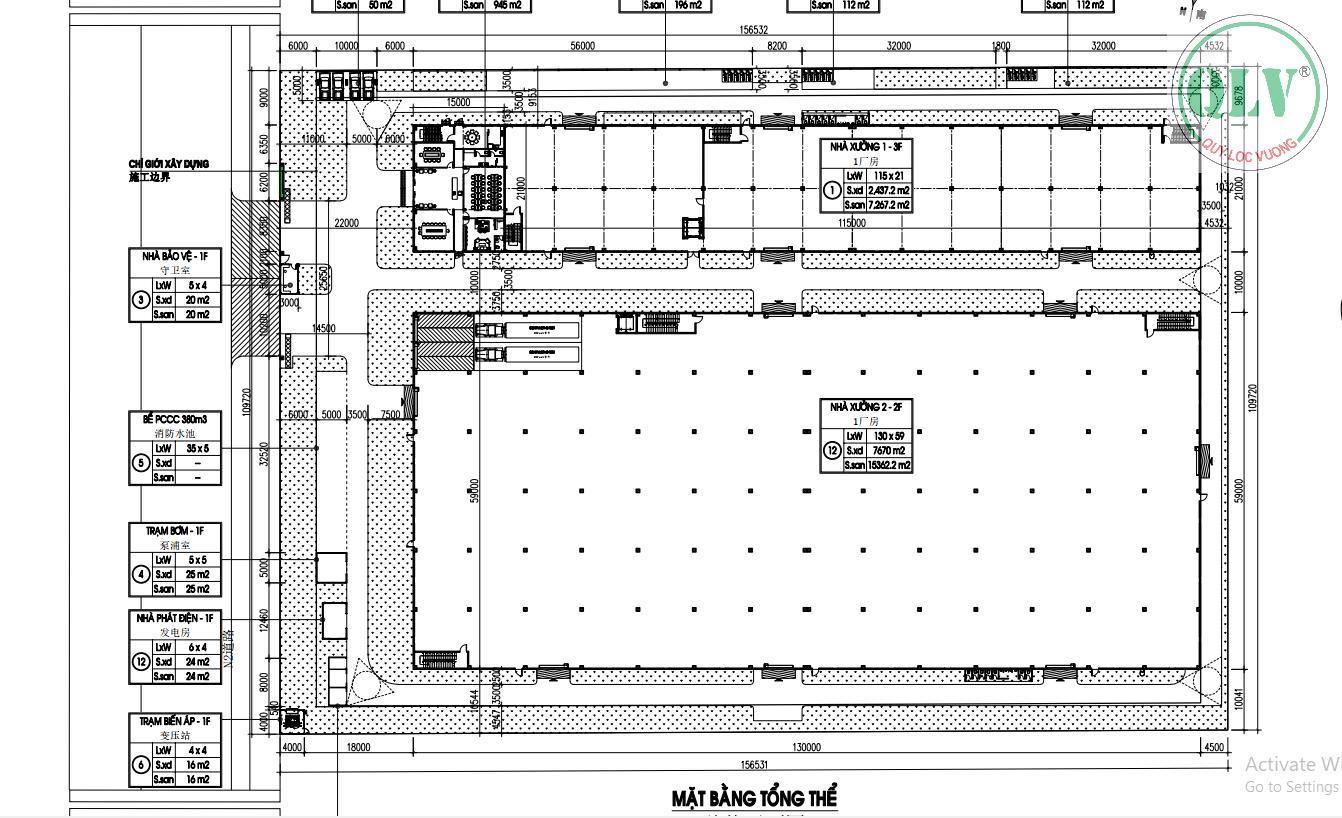
CHO THUÊ NHÀ XƯỞNG – KCN MỘC BÀI, BẾN CẦU, TÂY NINH – 22.989m²


 


Thông tin chi tiết


l Vị trí: Khu công nghiệp Mộc Bài, Huyện Bến Cầu, Tỉnh Tây Ninh


l Tổng diện tích khuôn viên: 17.174m²


 


Diện tích xây dựng: 22.989m², bao gồm:


l Xưởng 1: 7.627m² (3 tầng, diện tích sàn: 2.437m²/tầng)


l Xưởng 2: 15.362m² (2 tầng, diện tích sàn: 7.692m²/tầng)


l Văn phòng: 945m²


 


Giá cho thuê: 3,0 USD/m²/tháng


 


Tiện ích & hạ tầng:


l Kết cấu nhà xưởng kiên cố, thiết kế nhiều tầng, tối ưu diện tích sử dụng


l Hệ thống điện, nước, PCCC đầy đủ


l Đường nội bộ rộng, xe container ra vào thuận tiện


l Nằm trong KCN Mộc Bài, vị trí chiến lược gần cửa khẩu, thuận lợi cho xuất nhập khẩu


l Phù hợp nhiều ngành nghề sản xuất, kho bãi, logistics


 


Để biết thêm thông tin chi tiết vui lòng liên hệ:


CTY TNHH MTV QUÝ LỘC VƯỢNG


Hotline: 0931 769 444


Website: https://nhaxuongchinhchu.vn

Vị trí và tiện ích xung quanh